Pula:
Wohnung Veli Vrh, große Wohnung mit 3 Schlafzimmern

Objekt-Nr.: 25267

Preis:
Preis auf Anfrage

Wohnfläche ca.:
135 m²

Zimmeranzahl:
3

Objektbeschreibung

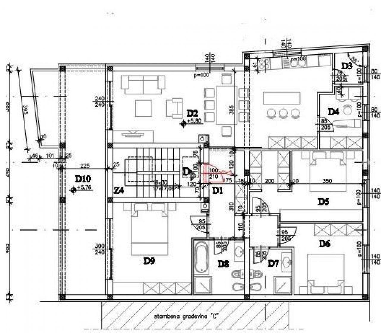
Das Angebot umfasst eine Wohnung mit 134,87 m2. Es besteht aus drei Schlafzimmern, zwei Bädern, einem großen Wohnzimmer mit einer offenen Küche und einem Esszimmer von 40 m2, die Wohnung verfügt außerdem über einen separaten Abstellraum und eine Waschküche, und der 25 m2 große Balkon bietet einen wunderschönen Blick auf die Meer. Die geplante Baufertigstellung ist Herbst 2025. Das Gebäude verfügt insgesamt über 3 Etagen, Erdgeschoss, 1. und 2. Etage mit insgesamt 4 Wohnungen, wovon diese mit der Bezeichnung D gekennzeichnete Wohnung die komplette 2. Etage einnimmt. Zur Wohnung gehören außerdem Garagenstellplätze sowie eine elektrische Fußbodenheizung im Wohnbereich und in den Bädern.

Info:
Azra Valjevac
+385 91 611 5706
azra@almadominvest.com

Weitere Informationen

Etage: 2


Etagenanzahl: 3


Anzahl Badezimmer: 2


Klimaanlage: ja


Baujahr: 2025


Energieklasse: A+


Anmerkung

Die von uns gemachten Informationen beruhen auf Angaben des Verkäufers bzw. der Verkäuferin. Für die Richtigkeit und Vollständigkeit der Angaben kann keine Gewähr bzw. Haftung übernommen werden. Ein Zwischenverkauf und Irrtümer sind vorbehalten.

AGB

Wir weisen auf unsere Allgemeinen Geschäftsbedingungen hin. Durch weitere Inanspruchnahme unserer Leistungen erklären Sie die Kenntnis und Ihr Einverständnis.

Ihre Ansprechpartnerin



Red Panda Properties, Inh. Mario Totzek

Telefon: +49 341 319 580 31
Mobil: +49 1746224477

Objekt-Adresse

HR- Pula
Objekt weiterempfehlen

QR-Code